Ez az oldal sütiket használ a felhasználói élmény javításához. További információ.

Új építésű amerikai stílusú családi ház Nyírszőlős

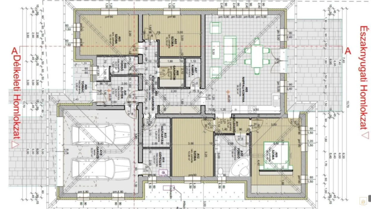
Új építésű amerikai stílusú családi ház Nyírszőlős 1. kép Új építésű amerikai stílusú családi ház Nyírszőlős 2. kép

Amerikai stílusú, új építésű családi ház eladó Nyíregyháza-Nyírszőlőben egy új lakóparkban – tágas terek, dupla garázs, 803 m²-es telek!


Nyíregyháza egyik legkedveltebb új lakóövezetében, már most lefoglalható ez a különleges, amerikai stílusban épülő családi ház!

Az ingatlan kiváló választás azok számára, akik egy modern, jól átgondolt elrendezésű otthont keresnek, prémium környezetben.


📐 Főbb adatok:

• Telek mérete: 803 m²

• Lakótér: 140 m²

• Dupla garázs: 32,6 m²

• Terasz: 3,6 m²

• Összesen: 176 m²

• Szobák száma: nappali + 4 szoba

• Fűtés: hőszivattyú, padlófűtés minden helyiségben

• Átadás várható ideje: 2026 tavasza


⭐ Mit kínál ez az otthon?

• Egyedi, amerikai stílusú építészeti megoldások

• Modern energetikai szabványoknak megfelelő kivitelezés (2025)

• Igény szerint módosítható belső elrendezés

• Választható burkolatok és szaniterek – az Ön ízlésére szabva

• Kiváló minőségű kivitelezés, megbízható háttérrel


🌳 A tágas, 803 m²-es telek, a dupla állásos garázs, a világos terek és az átgondolt elrendezés mind hozzájárulnak ahhoz, hogy ez az ingatlan tökéletes otthona legyen akár nagycsaládosoknak is.


Ingatlan vételára: 119,9 MFt

Érdeklődni: 06/30-156-7110

📞 Ne maradjon le róla – vegye fel velünk a kapcsolatot, és alakítsa saját elképzelései szerint ezt az álmot!


Részletek

Azonosító:
20250620
Ár:
119 900 000 Ft
Irányítószám:
4400
Helység:
Nyírszőlős
Alapterület:
140 m²
Szerkezet:
Tégla
Szobák száma:
4
Fürdőszobák:
1
Építés éve:
2025
Fűtés:
Hőszivattyú
Telek területe:
803 m²
Tető:
Cserép
Parkolás:
Önálló garázs
Típus:
Családi ház
Állapot:
Új

Extrák

automata garázs kapu
családi házas övezet
fürdőszoba-WC külön
garázs
hőszigetelt
lakóparki övezet
összkomfort
összközműves
padlófűtés
terasz
térkövezett udvar
világos

Térkép

Érdeklődjön az ingatlan iránt

Ez is érdekelheti

Új építésű ikerház Nyírszőlő új lakóparkjában

Új építésű ikerház Nyírszőlő új lakóparkjában

79 000 000 Ft

3 szoba
109 m2
Földszint
Nyírszőlős
Minimál stílusú új építésű családi ház Nyírszőlős

Minimál stílusú új építésű családi ház Nyírszőlős

99 900 000 Ft

3 szoba
109 m2
Nyírszőlős
Amerikai stílusú új családi ház eladó Nyíregyházán

Amerikai stílusú új családi ház eladó Nyíregyházán

79 900 000 Ft

2 szoba
101 m2
Földszint
Nyírszőlős