Ez az oldal sütiket használ a felhasználói élmény javításához. További információ.

Minimál stílusú új építésű családi ház Nyírszőlős

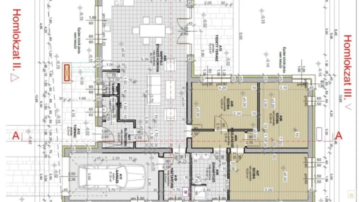
Minimál stílusú új építésű családi ház Nyírszőlős 1. kép Minimál stílusú új építésű családi ház Nyírszőlős 2. kép

Letisztult minimalizmus Nyíregyháza-Nyírszőlőben – új építésű, nappali + 3 szobás önálló családi ház várja leendő tulajdonosát!

Nyíregyháza egyik legújabb, kiemelten kedvelt lakóövezetében épül ez a stílusos, minimál dizájnnal megtervezett családi ház. A modern életstílusra tervezett otthon kiváló elrendezéssel, magas minőségű kivitelezéssel és testreszabható belső kialakítással várja új tulajdonosát.


📐 Főbb adatok:

• Telek terület: 781 m²

• Lakótér: 109 m²

• Garázs: 17 m²

• Terasz: 5,7 m²

• Fedett terasz: 12 m²

• Összes hasznos alapterület: 144 m²

• Szobák száma: nappali + 3 szoba

• Fűtés: hőszivattyú, padlófűtés minden helyiségben

• Átadás tervezett időpontja: 2026 tavasza


Az ingatlan előnyei:

• Letisztult, minimál stílusú építészeti megoldások

• 2025-ös energetikai előírásoknak megfelelő kivitelezés

• Testreszabható belső elrendezés és választható burkolatok

• Tágas fedett terasz a kényelmes kültéri pihenéshez

• Modern megjelenés, időtálló érték


Ingatlan vételára: 99,9 MFt

🌿 A nagy méretű, 781 m²-es telek, a kiváló térkihasználás, valamint a nyugodt környezet tökéletes választássá teszi ezt az ingatlant azoknak, akik egy stílusos, energiatakarékos és kényelmes otthonra vágynak.


Érdeklődni: 06/30-156-7110

📞 Foglalja le most, és alakítsa a belső tereket saját ízlése szerint!


Részletek

Azonosító:
20250621
Ár:
99 900 000 Ft
Irányítószám:
4400
Helység:
Nyírszőlős
Alapterület:
109 m²
Szerkezet:
Tégla
Szobák száma:
3
Fürdőszobák:
1
Építés éve:
2025
Fűtés:
Hőszivattyú
Külső állapot:
Új
Telek területe:
781 m²
Tető:
Cserép
Parkolás:
Önálló garázs
Típus:
Családi ház
Állapot:
Új

Extrák

automata garázs kapu
biztonsági bejárati ajtó
családi házas övezet
fürdőszoba-WC külön
garázs
hőszigetelt
lakóparki övezet
összkomfort
összközműves
padlófűtés
terasz
térkövezett udvar
világos

Térkép

Érdeklődjön az ingatlan iránt

Ez is érdekelheti

Egyedülálló befektetési lehetőség Sóstógyógyfürdőn

Egyedülálló befektetési lehetőség Sóstógyógyfürdőn

250 000 000 Ft

45 szoba
1800 m2
Sóstógyógyfürdő
Új építésű amerikai stílusú családi ház Nyírszőlős

Új építésű amerikai stílusú családi ház Nyírszőlős

119 900 000 Ft

4 szoba
140 m2
Nyírszőlős
Családi ikerházak foglalhatók Nyírpazony-Kabaláson

Családi ikerházak foglalhatók Nyírpazony-Kabaláson

70 000 000 Ft

3 szoba
100 m2
Földszint
Kabalás