Ez az oldal sütiket használ a felhasználói élmény javításához. További információ.

Új építésű ikerház Nyírszőlő új lakóparkjában

Új építésű ikerház Nyírszőlő új lakóparkjában 1. kép Új építésű ikerház Nyírszőlő új lakóparkjában 2. kép Új építésű ikerház Nyírszőlő új lakóparkjában 3. kép Új építésű ikerház Nyírszőlő új lakóparkjában 4. kép

Új építésű ikerház Nyírszőlő új lakóparkjában – nappali + 3 szoba, modern kialakítás, 2026-os átadással

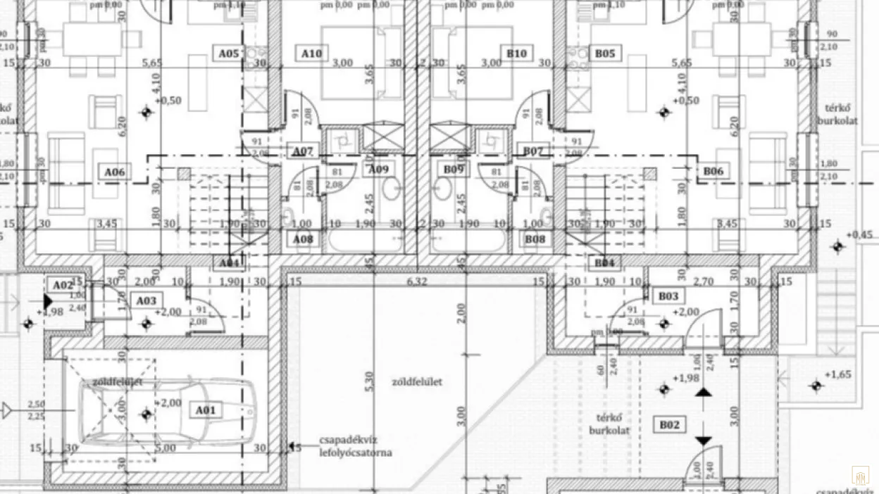
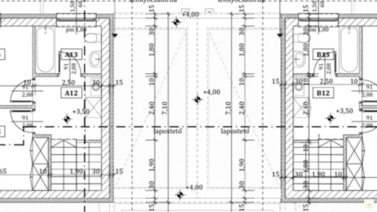
Nyíregyháza egyik dinamikusan fejlődő lakóparkjában eladó egy nappali + 3 szobás, 109 m²-es ikerházat, amely 360 m²-es saját telekrésszel rendelkezik. Az ingatlan a 2025-ös energetikai követelmények szerint épül, így nemcsak esztétikus, de energiatakarékos és fenntartható is.

A letisztult vonalvezetés, a praktikus elrendezés és a választható burkolatok lehetővé teszik, hogy az otthon teljesen az Ön ízlésére szabottan valósuljon meg.


📌 Főbb adatok:

• Telek mérete: 360 m²

• Lakóterület: 109 m²

• Szobák száma: nappali + 3 szoba

• Minden helyiségben padlófűtés hőszivattyúval

• Átadás tervezett időpontja: 2026 tavasza


⭐ Kiemelt jellemzők:

• Modern, letisztult stílus

• Minőségi kivitelezés, választható burkolatok és szaniterek

• 2025-ös energetikai szabványnak megfelelő kivitelezés

• Belső elrendezés igény szerint módosítható

• Ideális pároknak, családoknak és befektetésre egyaránt


Ingatlan vételára: 79 MFt

Érdeklődni: 06/30-156-7110

🌿 A zöldövezeti, nyugodt környezet és a praktikus telekméret egyaránt biztosítja a mindennapi komfortot. Tervezze meg új otthonát időben – még lehet beleszólása a belső kialakításba!


Részletek

Azonosító:
20250623
Ár:
79 000 000 Ft
Irányítószám:
4400
Helység:
Nyírszőlős
Alapterület:
109 m²
Szerkezet:
Tégla
Szobák száma:
3
Fürdőszobák:
1
Építés éve:
2025
Fűtés:
Hőszivattyú
Emelet:
Földszint
Külső állapot:
Új
Telek területe:
360 m²
Tető:
Cserép
Parkolás:
Önálló garázs
Típus:
Családi ház
Állapot:
Új

Extrák

automata garázs kapu
automata kapu
biztonsági bejárati ajtó
családi házas övezet
fürdőszoba-WC külön
garázs
hőszigetelt
lakóparki övezet
összkomfort
összközműves
padlófűtés
terasz
térkövezett udvar
világos

Térkép

Érdeklődjön az ingatlan iránt

Ez is érdekelheti

Amerikai stílusú új családi ház eladó Nyíregyházán

Amerikai stílusú új családi ház eladó Nyíregyházán

79 900 000 Ft

2 szoba
101 m2
Földszint
Nyírszőlős
Új építésű panorámás ikerház Balatonfüreden

Új építésű panorámás ikerház Balatonfüreden

234 000 000 Ft

4 szoba
160 m2
Balatonfüred
Új építésű amerikai stílusú családi ház Nyírszőlős

Új építésű amerikai stílusú családi ház Nyírszőlős

119 900 000 Ft

4 szoba
140 m2
Nyírszőlős