Ez az oldal sütiket használ a felhasználói élmény javításához. További információ.

Amerikai stílusú új családi ház eladó Nyíregyházán

Amerikai stílusú új családi ház eladó Nyíregyházán 1. kép Amerikai stílusú új családi ház eladó Nyíregyházán 2. kép

Amerikai stílusú új családi Nyírszőlőben – nappali + 2 szobával, hatalmas telekkel

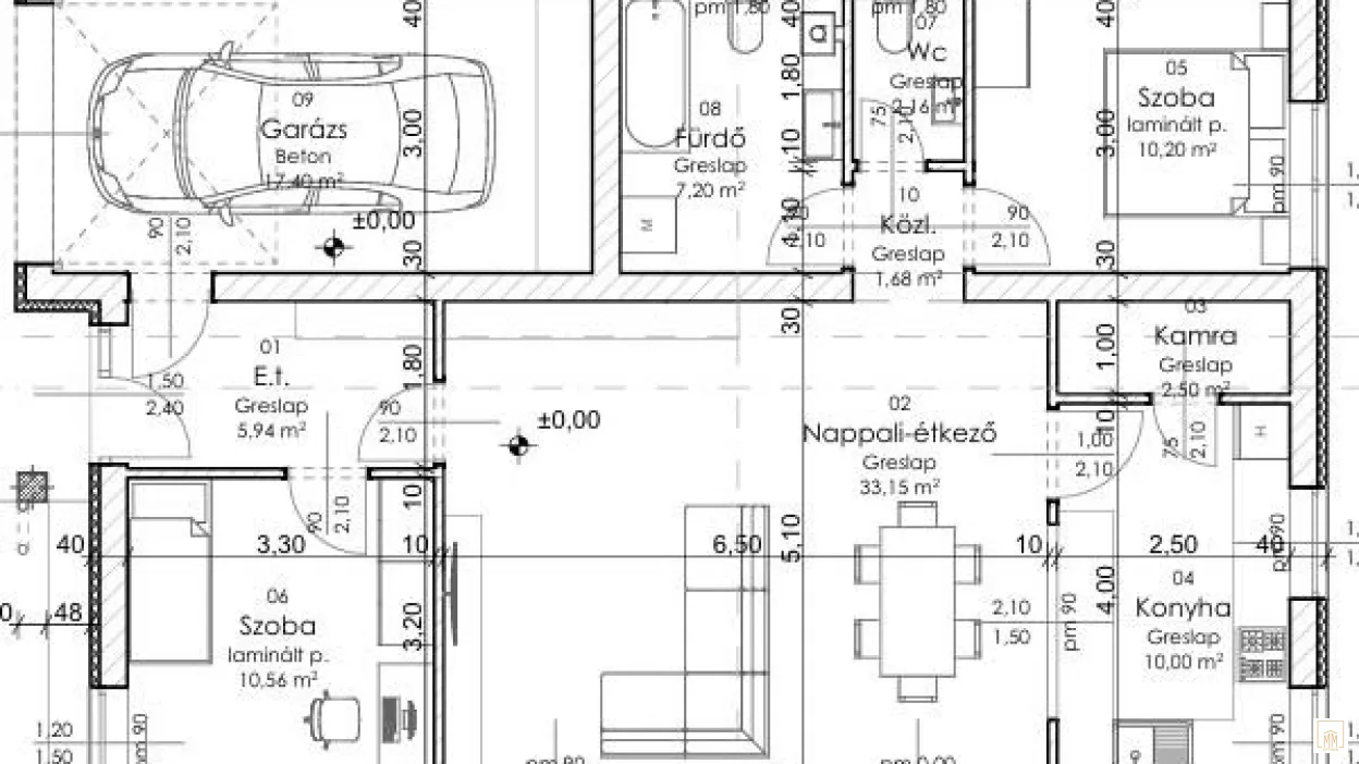
Nyíregyháza egyik csendes, mégis jól megközelíthető részén kínáljuk ezt az amerikai stílusú, új építésű családi házat, amely letisztult eleganciával, nagy terekkel és kiváló kivitelezéssel várja új lakóit.

Ez a nappali + 2 szobás, garázzsal egybeépített otthon 901 m²-es saját telekre épül, így ideális választás lehet pároknak, kisebb családoknak vagy idősebb korosztálynak, akik nyugalmat és kényelmet keresnek egy modern környezetben.


📐 Főbb adatok:

• Telek mérete: 901 m²

• Lakóterület (garázzsal együtt): 100,8 m²

• Helyiségek: nappali + 2 szoba

• Minden helyiségben padlófűtés hőszivattyúval

• Befejezés tervezett időpontja: 2026 tavasza


⭐ Kiemelt jellemzők:

• Amerikai stílus – nyitott, világos belső terek

• Minőségi kivitelezés, választható burkolatok és szaniterek

• 2025-ös energetikai szabványok szerint épül

• Testreszabható alaprajz és belső elrendezés

• Kiváló ár-érték arány egy modern lakóparkban


Ingatlan vételára: 79,9 millió Ft

🌿 A közel 1000 m²-es kert ideális lehet kertészkedéshez, családi pihenéshez vagy akár egy kis medence kialakításához is. A nyugodt, zöldövezeti környezet garantálja a mindennapi nyugalmat.


Érdeklődni: 06/30-156-7110

📞 Foglalja le időben, amíg elérhető!

Részletek

Azonosító:
20250622
Ár:
79 900 000 Ft
Irányítószám:
4400
Helység:
Nyírszőlős
Alapterület:
101 m²
Szerkezet:
Tégla
Szobák száma:
2
Fürdőszobák:
1
Építés éve:
2025
Fűtés:
Hőszivattyú
Emelet:
Földszint
Külső állapot:
Új
Telek területe:
901 m²
Tető:
Cserép
Parkolás:
Önálló garázs
Kilátás:
Kertre néző
Típus:
Családi ház
Állapot:
Új

Extrák

automata garázs kapu
automata kapu
biztonsági bejárati ajtó
családi házas övezet
fürdőszoba-WC külön
garázs
hőszigetelt
kemence
kertkapcsolatos
lakóparki övezet
összkomfort
összközműves
padlófűtés
terasz
térkövezett udvar
világos

Térkép

Érdeklődjön az ingatlan iránt

Ez is érdekelheti

Új építésű ikerház Nyírszőlő új lakóparkjában

Új építésű ikerház Nyírszőlő új lakóparkjában

79 000 000 Ft

3 szoba
109 m2
Földszint
Nyírszőlős
Új építésű amerikai stílusú családi ház Nyírszőlős

Új építésű amerikai stílusú családi ház Nyírszőlős

119 900 000 Ft

4 szoba
140 m2
Nyírszőlős
Új építésű balatoni panorámás ikerház Balatonfüreden

Új építésű balatoni panorámás ikerház Balatonfüreden

265 000 000 Ft

3 szoba
161 m2
Tetőtér
Balatonfüred